ARCHITECTURES

Maison PR.
Lieu Yvelines 78
Surface 180 m²
Calendrier 2015
Mission Transformation d'une grange en habitation, Esquisse
Equipe Gauthier Jaulin, Philippe Vannier

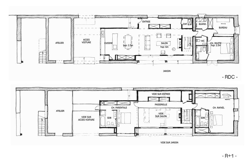
La transformation d'une construction existante en un nouveau projet de logement implique de se réapproprier l'ancien pour en renouveler l'usage. L'un des enjeux majeurs de notre approche est de retrouver les qualités architecturales inhérentes à la démarche constructive initiale.
Le projet propose, ici, la construction d'un volume allongé imbriqué au volume vide de la grange d'origine. Les nouveaux espaces d'habitation mettent en scène le paysage intérieur et extérieur de l'ancien bâtiment. Ils créent des lieux de vie s’intégrant dans une relation claire entre l'ancien et le neuf. L'architecture du lieu est ainsi mise en valeur.


A l'intérieur les grands volumes organisent les plus petits. Les chambres s'ouvrent sur un grand foyer très spacieux intégrant la cuisine et la double hauteur du séjour. Cette mise en place, qui dégage des vues entre les espaces de vie, donne une sensation de légèreté au nouveau volume.